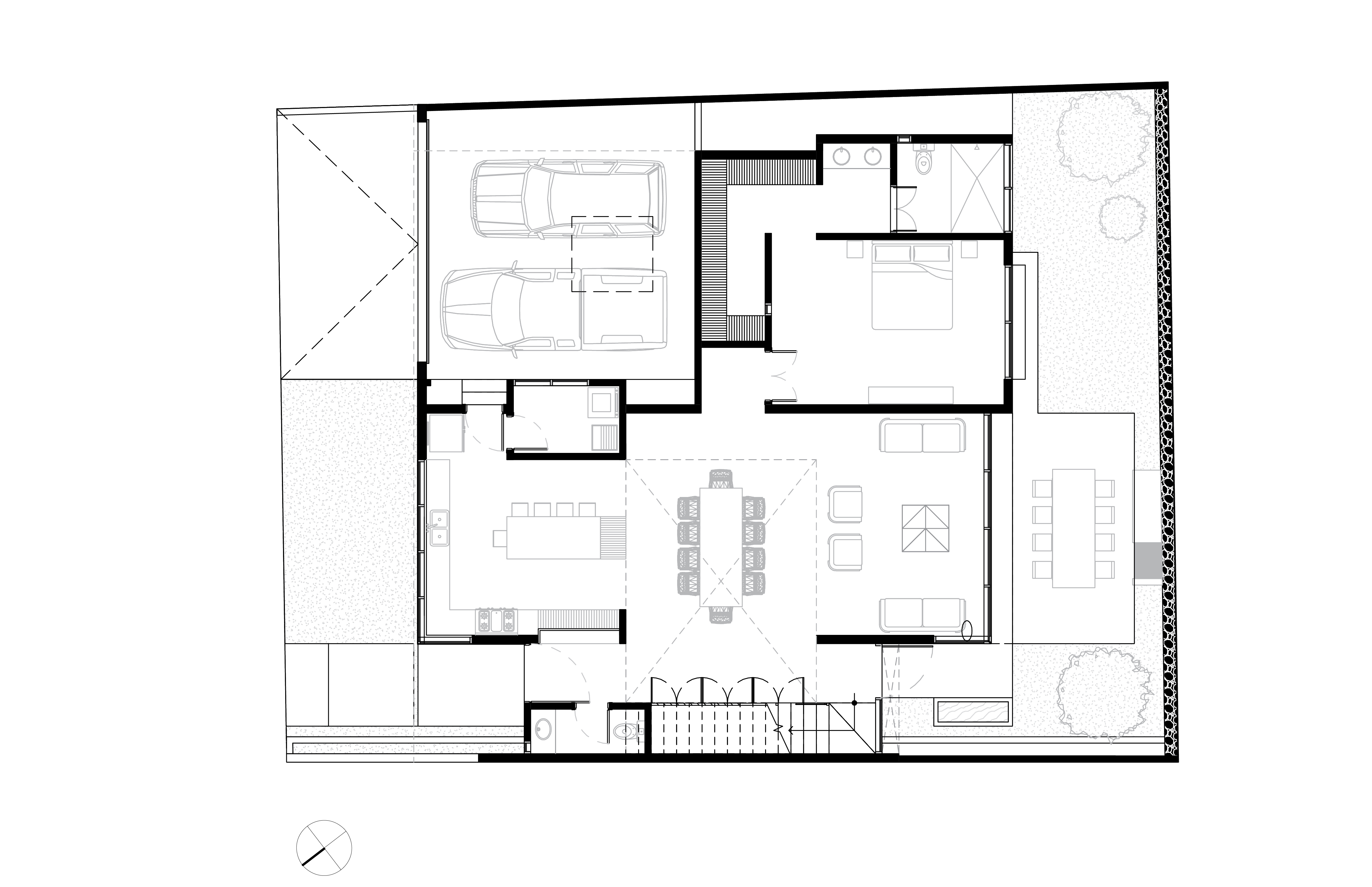
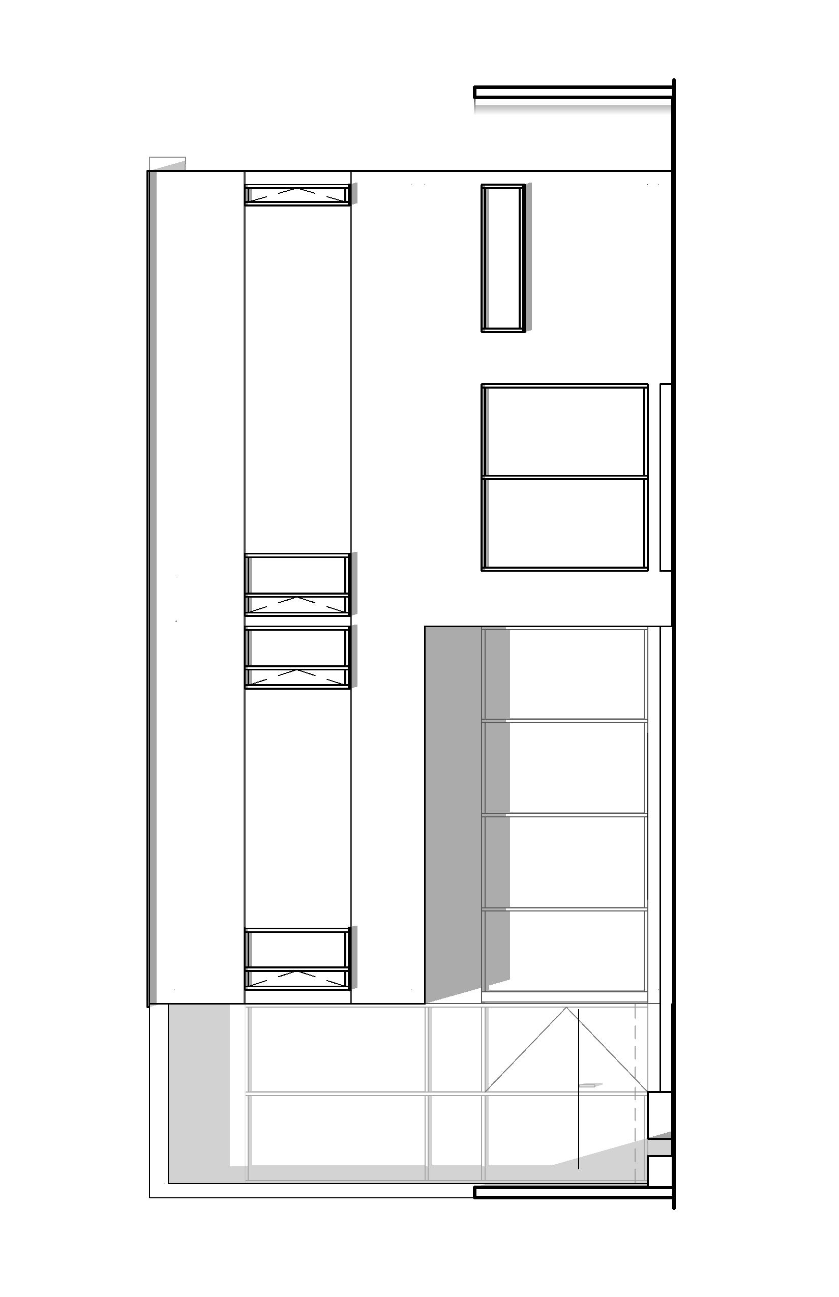
Casa Natura
Vivienda
SCROLL PARA CONOCER MÁS ↓








NOMBRE:
Casa Natura
UBICACIÓN:
Chihuahua, Chihuahua
CLIENTE:
Familia López
ESTADO:
Proyecto
Casa Natura
UBICACIÓN:
Chihuahua, Chihuahua
CLIENTE:
Familia López
ESTADO:
Proyecto
AÑO:
2021
SUPERFICIE:
120 m²
PROYECTO:
Evangelina Guerra
César Heredia
2021
SUPERFICIE:
120 m²
PROYECTO:
Evangelina Guerra
César Heredia